撹拌機・攪拌機・溶解槽・タンク・電動エアモーターは熊本県八代市の株式会社シンエイ攪拌機
株式会社 シンエイ攪拌機
熊本県八代市敷川内町685-3TEL:0965-38-1555
FAX:0965-38-1666
可搬形撹拌機の取付け要領
タンクの上級または支持架台にクランプで固定します。シャフトは図1のように上下、左右に角度をつ けて下さい。しかし、翼が槽の中心を越えないように固定します。横内配管などがあるときは、槽内に突起(バッフル)があると考え、翼の位置が槽の中心部に位置するように取付けることが必要です。
また、※プロペラの上下段は翼枚数の倍数になるように取付けて下さい。
また、※プロペラの上下段は翼枚数の倍数になるように取付けて下さい。

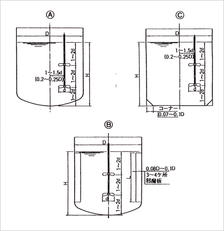
立形撹拌機の取付け要領
撹拌機の取付位置及び撹撹拌翼の設定位置は、撹拌効果に大きな影響を及ぼします。
槽の形状や撹絆物性、撹件目的などの仕様条件により取付け要領は多少の違いがありますが、基本的には次のタイプがあります。
A図:撹拌機を偏心して取付ける方法で、軸流方向流れの中で上下対流と乱流が得られます。
B図:撹拌機を槽の中心に取付ける方法で、槽の内壁に邪魔板を設けて上下対流と乱流を得ます。
C図:平底槽で偏心取付けを行う方法で、スラリ一の溶解、混合液~液でも特に比重差の大きいときなどは、槽底部にコーナーを設けて液の停滞、滞流を防止します。
槽の形状や撹絆物性、撹件目的などの仕様条件により取付け要領は多少の違いがありますが、基本的には次のタイプがあります。
A図:撹拌機を偏心して取付ける方法で、軸流方向流れの中で上下対流と乱流が得られます。
B図:撹拌機を槽の中心に取付ける方法で、槽の内壁に邪魔板を設けて上下対流と乱流を得ます。
C図:平底槽で偏心取付けを行う方法で、スラリ一の溶解、混合液~液でも特に比重差の大きいときなどは、槽底部にコーナーを設けて液の停滞、滞流を防止します。

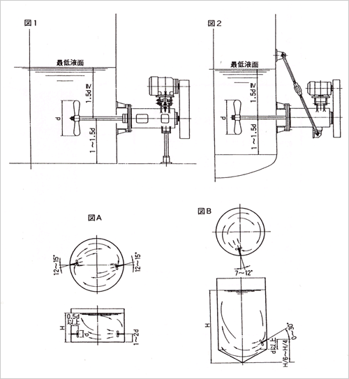
側面形撹拌機の取付け要領とフローパターン(流線模型)
図1の取付け脚式を標準構造としていますが、槽の形状、設置場所などの諸条件に応じて、図2の吊下式も製作します。
【図A】
平底の大容量槽で槽径と比較し液深の低い槽の場合の方法です。槽の大きさ、容量に応じて一槽に3~5台設置することもあります。2台以上のときは1台の流れの合成流となります。
【図B】
円錐底、球面底、皿底などの槽で、槽径に比較して液深が大きい場合の方法です。撹拌の強度液深などに応じて数台を設置することもあります。図のフローパターンは一台の場合です。
【図A】
平底の大容量槽で槽径と比較し液深の低い槽の場合の方法です。槽の大きさ、容量に応じて一槽に3~5台設置することもあります。2台以上のときは1台の流れの合成流となります。
【図B】
円錐底、球面底、皿底などの槽で、槽径に比較して液深が大きい場合の方法です。撹拌の強度液深などに応じて数台を設置することもあります。図のフローパターンは一台の場合です。

Copyrightc株式会社 シンエイ攪拌機. All Rights Reserved.